大阪市大正区南恩加島6丁目1-1

995万円

大阪府大阪市大正区南恩加島6丁目1-1

大阪環状線「大正」駅バス22分大阪市営「南恩加島」停歩1分

南海汐見橋線「津守」駅徒歩50分

地下鉄四つ橋線「北加賀屋」駅徒歩41分

価格
995万円
間取り/建物面積
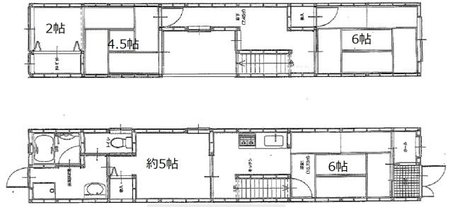
4K/69.55㎡
所在地
大阪府大阪市大正区南恩加島6丁目1-1
築年
1969年7月(築56年)
駐車
-
交通

大阪環状線大正」駅 バス22分 大阪市営「南恩加島」 停歩1分

南海汐見橋線津守」駅 徒歩50分

地下鉄四つ橋線北加賀屋」駅 徒歩41分

大阪市大正区南恩加島6丁目1-1の基本情報

物件名
大阪市大正区南恩加島6丁目1-1
価格
995万円
建物面積
69.55㎡
土地面積
12.78坪(42.27㎡)
築年月
1969年7月(築56年)
総戸数
-
所在地
大阪府大阪市大正区南恩加島6丁目1-1
交通

大阪環状線大正」駅 バス22分 大阪市営「南恩加島」 停歩1分

南海汐見橋線津守」駅 徒歩50分

地下鉄四つ橋線北加賀屋」駅 徒歩41分

大阪市大正区南恩加島6丁目1-1の詳細情報

設備条件
設備(その他)
    -
駐車場/月額
-/-
土地権利
所有権
国土法届出
不要
用途地域
商業
取引態様
専属専任媒介
引渡し
相談

大阪市大正区南恩加島6丁目1-1で募集中の物件

  1. 21.03坪 (69.55㎡)

    995万円(47.31万円/坪)

よく見られている物件

  1. 高石市高師浜1丁目

    3LDK (86.30㎡)

    2,380万円

  2. 大阪市大正区南恩加島6丁目

    4K (69.55㎡)

    995万円

  3. 高石市羽衣4丁目

    3LDK (89.09㎡)

    3,080万円

  4. 堺市西区草部

    4LDK (92.74㎡)

    1,973万円

大阪市大正区南恩加島6丁目1-1

お気軽にお問い合わせください

無料お問い合わせ

ダイバーシティホーム 株式会社

0120-70-8952

9:00~19:00 電話受付は23:00まで

(休:火曜日・水曜日)